在北欧零下 30℃极寒环境下,渔船作业设备面临严峻考验。欧超 1.5T10M&3.5T7M 直臂吊机凭借低温适应性和稳定性能,打破作业限制,以高品质打入北欧市场,获客户认可,展现技术实力。
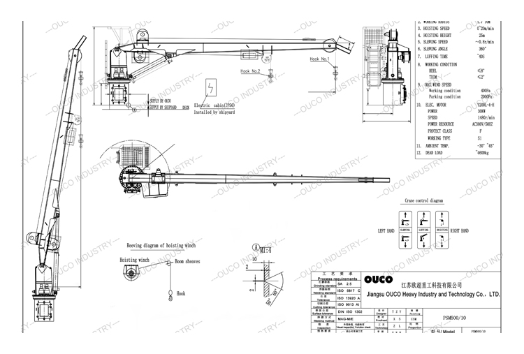
吊机将安装于客户的捕鱼船上,用于吊装渔网与生活用品,作业环境面临零下 30 度的低温挑战。鉴于北欧市场对低温设备的严格标准,欧超技术团队自设计之初便着重低温适应性研发,通过优化核心部件材料选型与密封技术,保障吊机在极寒环境下稳定作业,契合北欧市场使用需求。

渔船甲板空间有限,是吊机安装难题。欧超直臂吊机凭借紧凑结构设计,缩小底座直径,降低安装空间要求,适配各类渔船。

在保证性能的同时,欧超直臂吊机通过结构力学优化实现自重轻量化,在降低渔船承载负担、保障航行稳定性的同时,仍保持高起重力矩,可高效完成渔网、生活用品等各类货物的吊装作业。
吊机采用单液压缸驱动的俯仰结构设计,精简机械传动系统。这种设计大幅降低维护复杂度与成本,减少故障风险,显著提升设备耐用性,为客户带来长效省心的使用体验。

欧超直臂吊机针对渔船海洋作业环境,全机做特殊防腐处理,关键部件用 AISI316 不锈钢,可抵御海洋侵蚀,保障设备稳定运行并延缓老化。
安全是作业核心。欧超直臂吊机构建 “设备防护 + 人员保护 + 应急处置” 三重保障:关键部件配备防水控制罩,抵御海水侵蚀;绞车、驾驶室等区域加装防碰架,规避人员碰撞风险;紧急停止按钮可一键断电停机,全方位守护渔船作业安全。

客户验货
在产品验收阶段,客户仔细查看了吊机的每一处细节,对产品品质给予高度评价,称赞其 “几乎和之前购买的欧洲品牌一样的品质”。这份认可,是对欧超产品质量的肯定,也印证了欧超在技术研发与制造工艺上的不懈追求。

产品发货
在完成验收后,欧超团队验收后迅速准备吊机装车,用防震缓冲材料包裹液压缸、控制面板等关键部位,再套上防水防尘罩,避免运输途中受潮、颠簸受损。

两台直臂吊机,正平稳驶向目的地。未来,欧超将持续深耕吊机领域,突破技术瓶颈,研发适配多场景的产品,为全球客户提供高效、可靠、安全的吊装方案。

电话:150-6188-1000
邮箱:max.xu@oucomarine-group.com
地址:江苏无锡惠山区阳山镇陆区天顺路20号