地址:无锡惠山区阳山镇陆区天顺路20号
热线:电话:15061881000
座机:0510-83953186
网址:www.ouco-china.com
邮箱:max.xu@oucomarine-group.com
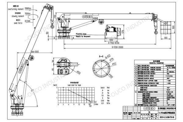
江苏欧超为卡塔尔客户定制了一台0.2t20m船用伸缩臂船用吊机,这款吊机具有CCS证书,载人安全保护标准高,用于卡塔尔的石油服务船上!
0.2T20M伸缩船用吊机-实拍图
0.2T20M伸缩船用吊机—参数图纸
船用A型吊架
9t16m折臂伸缩船吊
0.5t15m渔船吊
20t17m直臂船吊
5T7.5M折臂海工吊
电话:150-6188-1000
地址:江苏无锡惠山区阳山镇陆区天顺路20号
随车吊 / 船用、码头吊机 / 抓斗 / 漏斗
360°虚拟工厂之旅